Orman Genel Müdürlüğü Andırın Lojman Binası
DETAYLAR- PROJE : Orman Genel Müdürlüğü Andırın Lojman Binası
- PROJE DURUMU: Tamamlanan Projeler
- Proje Yeri / Tarihi: KAHRAMANMARAŞ/2023
- İŞ VEREN: ORMAN GENEL MÜDÜRLÜĞÜ
- PROJE KONUSU: Konut
Orman Genel Müdürlüğü direktörlüğünde, ülkemizde yaşanan 6 Şubat depremleri sonrası başlatılan ve yurtdışı örnekleri yüksek katlı ahşap yapıları referans alarak ilerleyen planlama da, tüm deprem bölgesi ve Türkiye genelinde ahşap yapı tasarımı konusu tekrar ele alınmıştır.
Proje kapsamında özellikle deprem bölgesinde Bakanlık personelinin kullanacağı lojman binaları ahşap strüktür üzerinde yenilecek ve yapı davranışları gözlemlenecektir. Mevcut yapı standartlarımızda ahşap yapılara ait standartlar iyileştirilmeye gidilmiş ve daha çok araştırılmaya, standartlar tekrar düzenlenmeye başlanmıştır. Bu kapsamda devam eden alçak katlı lojman binaları imalat bilgileriyle, mevcut yapı standartları gözlemlere göre tekrar şekillenmekte ve geliştirilmekte, gelecek yıllar da daha yüksek katlı ahşap yapı standartlarına referans olmaktadır.
İndus Tasarım olarak bu kapsam da Kahramanmaraş Andırın Lojman binası mimari tasarımında ve yapımında bulunmaktan gurur duymaktayız.
Proje, doğayla bütünleşik, sürdürülebilir ve sağlıklı yaşam alanları oluşturmayı amaçlamaktadır. Yapının taşıyıcı strüktürü tamamen ahşap olarak tasarlanmıştır. Bu seçim, deprem dayanımı ile birlikte doğaya duyarlı yaklaşımın ve karbon salınımını azaltma hedefinin bir parçasıdır. Ahşap strüktür, hem doğal estetik hem de kullanıcıların psikolojik rahatlığı açısından mekâna sıcaklık ve huzur katmaktadır.
Konseptin temel ilkeleri, depreme dayanıklılık, ekoloji, sürdürülebilirlik, enerji verimliliği, doğayla uyum ve insan ölçeği olmuştur.
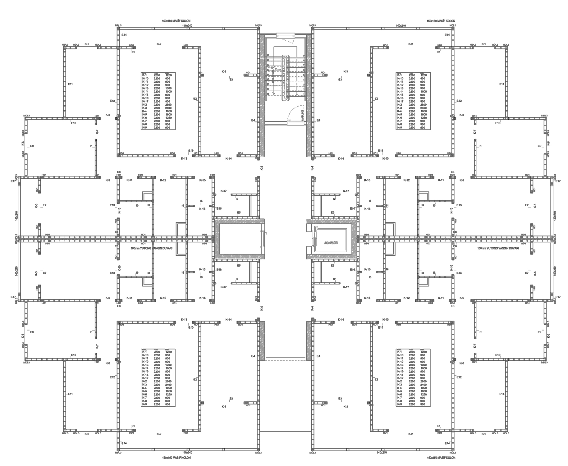
Binanın çekirdek sistemi ve toprak altında kalan bodrum katı betonarme olarak inşa edilmiştir. Zemin kattan itibaren Taşıyıcı Sistem, Çapraz lamine ahşap (CLT) paneller ve yapıştırma lamine ahşap (glulam) kolon-kiriş sistemidir. Deprem güvenliği için metal bağlantı elemanları ile sistem güçlendirilmiştir. Ahşap kaplama, doğal taş detaylar, yüksek yalıtımlı cam sistemleri kullanılmış, yapının ısı, nem ve yangın dayanımına uygun olarak ahşap strüktür koruması sağlanmıştır.
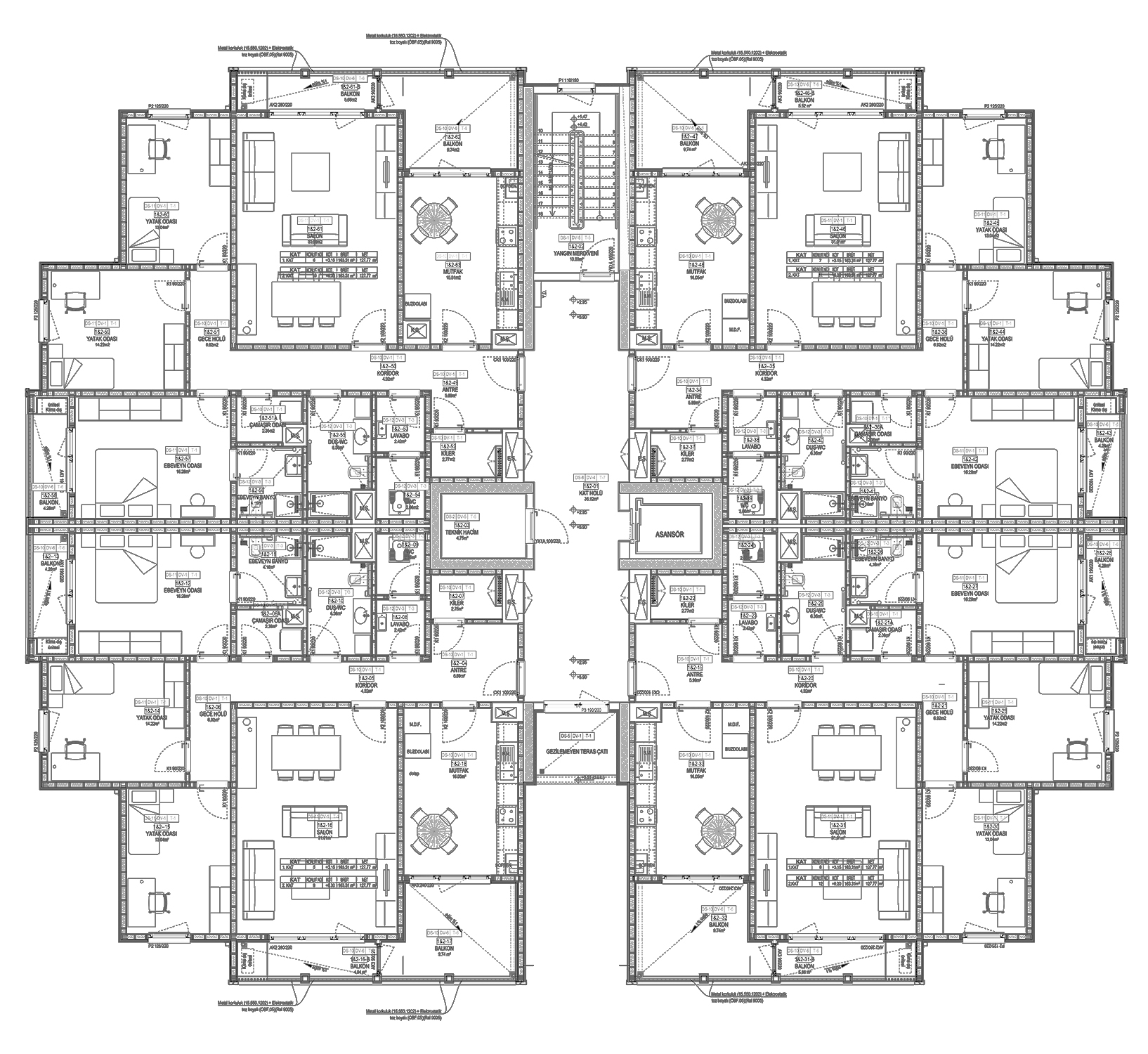
Lojman binası, orman alanına yakın, sessiz ve doğal çevreyle uyumlu bir bölgede konumlanmaktadır. Araç ve yaya girişleri ayrı planlanmış, engelli erişimi gözetilmiştir. Yapı, orman dokusu ile bütünleşen, yeşil alanları ve doğal peyzajı koruyan bir anlayışla tasarlanmıştır.
Doğal topoğrafyaya minimum müdahale ile oturan planlama yapılmıştır. Yerel bitkilerin kullanıldığı ekolojik peyzaj, yeşil alanlar, çocuk oyun alanları ve yürüyüş parkurlarıyla çevre şekillenmiştir.
Proje, Orman Genel Müdürlüğü’nün doğaya saygılı ve sürdürülebilir vizyonuna uygun olarak, tamamen ahşap taşıyıcı sisteme sahip, modern bir lojman yapısı olarak geliştirilmiştir. Hem çalışanların konforunu sağlayacak, hem de çevreye minimum etki bırakacak şekilde tasarlanan yapı, ekolojik mimarlığın örneklerinden biri olmayı hedeflemektedir.


