Belediye Hizmet Binası Bolu
DETAYLAR- PROJE : Belediye Hizmet Binası Bolu
- PROJE DURUMU: konsept proje
- Proje Yeri / Tarihi: Bolu/ 2020
- İŞ VEREN: Bolu Belediyesi
- PROJE KONUSU: Kamu+Kültür+Sosyal Alan
Bolu Belediyesine ait, D100 karayolu üzerinde yeni Adliye Binası yanında yer alan arazi üzerinde planlanan Belediye hizmet binası, çağdaş mimari yaklaşımlar ile tasarlanmış, vatandaş odaklı, şeffaf ve erişilebilir bir kamusal yapı olarak kente hizmet vermesi düşünülmüştür.
Yapı, sadece bir hizmet binası değil, aynı zamanda kültürel, sosyal ve demokratik yaşamın merkezi olarak topluma katkı sunmaktadır.
Bolu Belediyesi Hizmet Binası, iki ayrı kütleyi kendi iç sokağıyla birleştiren bir yapıdadır. Binanın iki ayrı kütlesi ihtiyaç programı ve kullanım yoğunluğuna göre ayrışmış, her katta köprülerle birbirine bağlanmıştır. Yapı betonarme ve çelik karkas taşıyıcı sistem üzerinde yükselip, cepheyle bütünleşik bir saçakla da iki yapı bütünlüğü sağlanmıştır.
Ana avlu, cepheden uzayan saçak altında tanımlanmakta, saçak altında yer alan birimlerle birlikte ana avlu kent meydanı olarak hizmet vermektedir. Güneş panelleri, yağmur suyu geri dönüşüm sistemi, ısı yalıtımlı cepheler enerji verimliliğini artırmak için planlanmıştır. Doğal ışık ve havalandırmadan maksimum fayda sağlamak için geniş açıklıklar ve atrium çözümleri kullanılmıştır.
Belediye hizmet binasının tasarımında, şeffaflık, erişilebilirlik ve kamusal kimlik kavramları öne çıkarılmıştır. Bina, kentin merkezinde kamusal yaşamın odağı olacak şekilde konumlandırılmıştır. Vatandaşların belediye hizmetlerine kolay erişmesi için açık, anlaşılır ve yönlendirici mekânsal çözümler üretilmiştir. Yapı, sadece bir idari merkez değil; aynı zamanda toplumsal etkinliklerin düzenlenebileceği kamusal bir alan olarak tasarlanmıştır. Ana avlu dinlenme ve etkinilik alanlarına uygun olarak yerel bitki örtüleri ve ekolojik peyzaj çözümleriyle güçlü bir mekan olarak tanımlanmıştır.
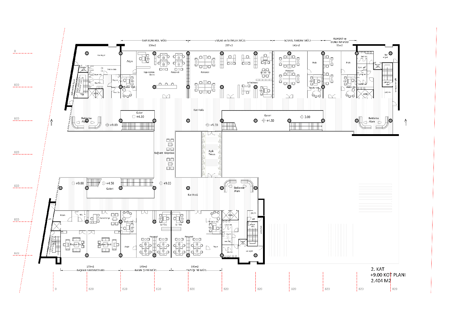
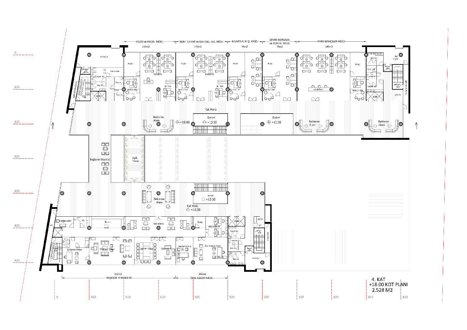
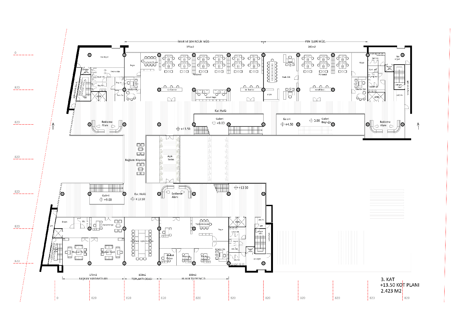
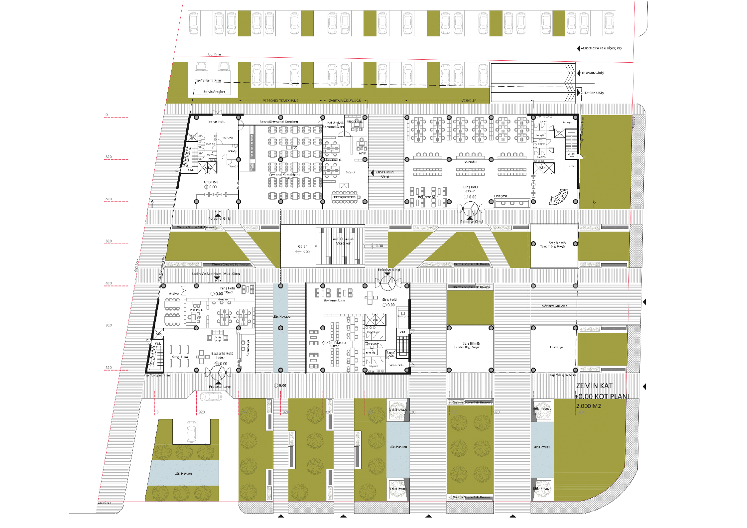
- Zemin Kat:
* Vatandaş danışma ve yönlendirme birimleri
* Çok amaçlı fuaye ve bekleme alanı
* Nikâh salonu, kültürel etkinlik alanları
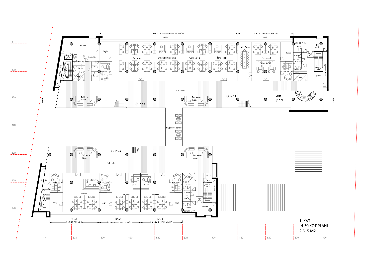
- Üst Katlar:
* Belediye başkanlık makamı
* İdari birimler (mali işler, imar, sosyal hizmetler, zabıta vb.)
* Meclis salonu ve toplantı odaları
- Ortak Alanlar:
* Sergi ve etkinlik alanları
* Konferans ve eğitim salonları
* Kütüphane / arşiv
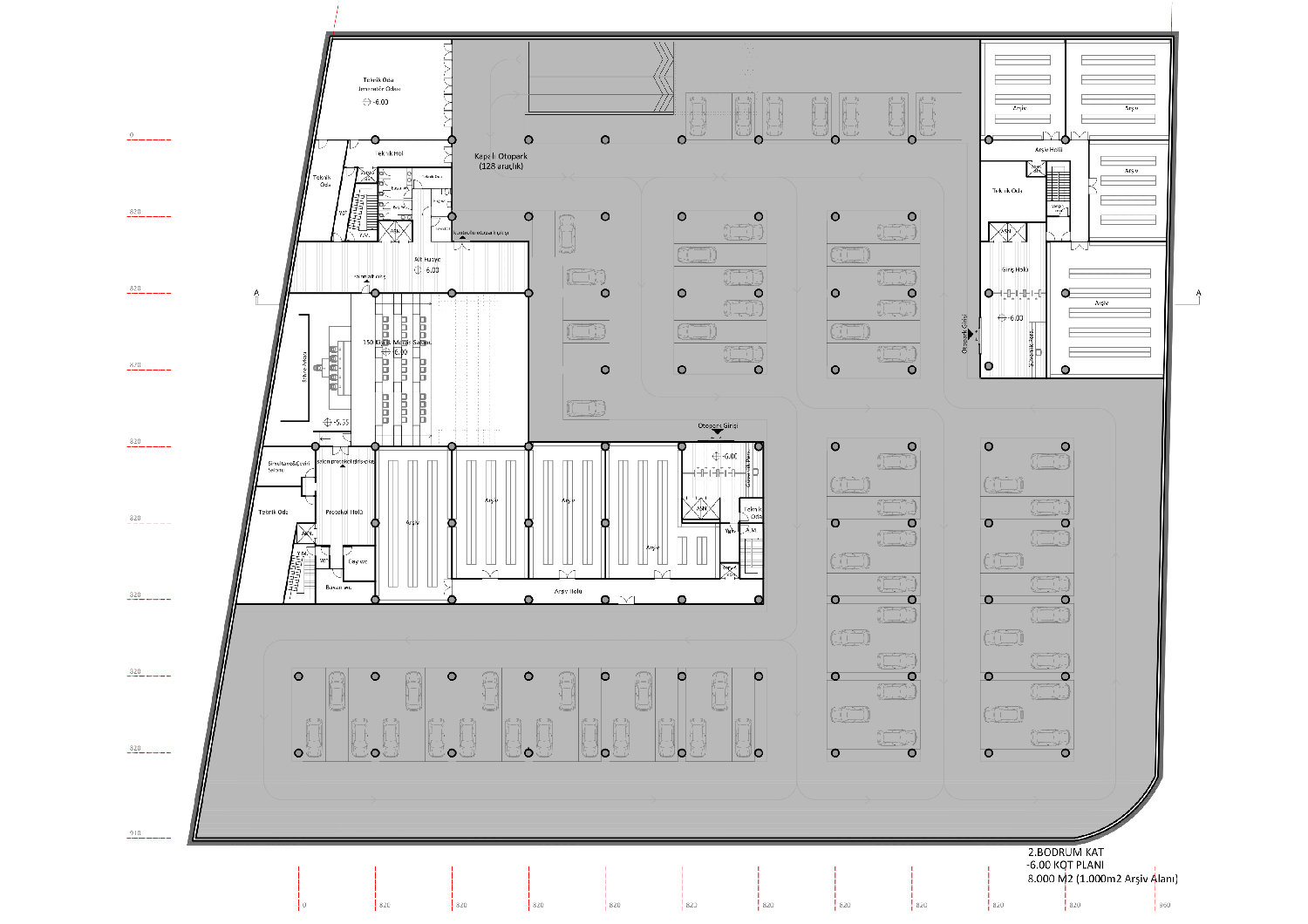
- Dikey Sirkülasyon:
* Asansör ve merdivenler, tüm katlara eşit erişim sağlamaktadır.


